조감도? 평면도? 입면도? 설계개요서? 건물배치도?
전원주택을 분양 받거나 건축 예정이시라면 접하게 되는 용어들입니다.
오늘은 그림 공부를 해 볼까요?
| 순 서 1. 조감도 2. 평면도 3. 입면도 4. 설계개요서 5. 건물 배치도 |
1. 조감도

鳥 새 조
瞰 굽어볼 감
圖 그림 도
한자를 풀어보면 높이 나는 새가 아래를 내려보는 그림 되겠네요.
조감도는 새가 하늘에서 내려다보는 것처럼 지표를 표현한 그림입니다.
조감도는 건축, 토목, 도시계획, 관광 등 다양한 분야에서 사용됩니다.
조감도는 종이에 그리는 2D 방식과 컴퓨터로 그리는 3D 방식이 있습니다.
2D 조감도는 손으로 그리는 방식과 컴퓨터로 그리는 방식이 있습니다.
3D 조감도는 컴퓨터로 3D 모델을 생성하고, 그 모델을 조작하여 조감도를 생성하는 방식입니다.

조감도는 주로 건축물이나 도시의 전체적인 모습을 표현하는 데 사용됩니다.
또한, 건축물의 외관이나 내부 구조를 표현하는 데에도 사용됩니다.
조감도는 건축물의 설계나 시공, 홍보 등에 활용됩니다.
조감도의 장점은 다음과 같습니다.
- 건축물이나 도시의 전체적인 모습을 한눈에 파악할 수 있다.
- 건축물의 외관이나 내부 구조를 입체적으로 표현할 수 있다.
- 건축물의 설계나 시공, 홍보에 효과적이다.
조감도의 단점은 다음과 같습니다.
- 건축물의 세부적인 디테일을 표현하기 어렵다.
- 컴퓨터로 제작하는 경우 비용이 많이 든다.
조감도는 건축, 토목, 도시계획, 관광 등 다양한 분야에서 널리 사용되는 중요한 도구입니다. 조감도는 건축물이나 도시의 전체적인 모습을 표현하여, 이해를 돕고, 설계나 시공, 홍보에 활용됩니다.
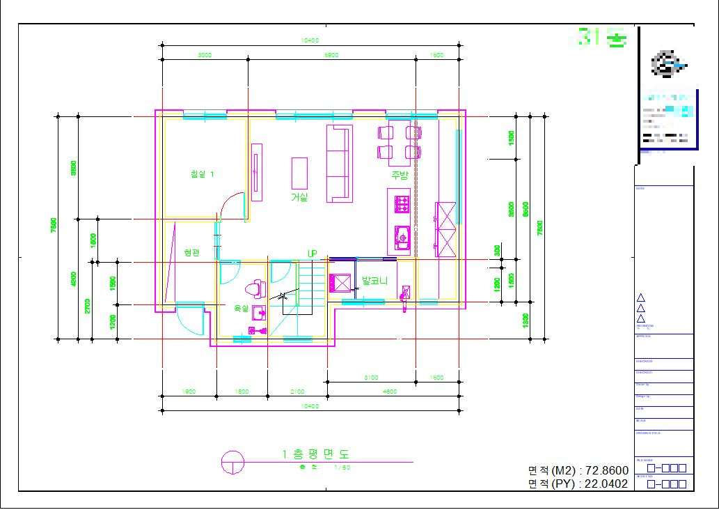
2. 평면도

平 평평할 평
面 낯 면
圖 그림 도
한자를 풀어보면 평평한 얼굴(모습) 그림 되겠습니다.
평면도는 건축물의 내부를 위에서 내려다 본 도면을 말합니다.
바닥에서 1m ~ 1.5m 높이를 잘랐을 때 볼 수 있는 모습을 나타내는 도면으로, 각각의 방이 어떻게 배치되어 있는지 알 수 있습니다.
평면도는 건축물의 설계, 시공, 감리, 유지관리 등 모든 과정에서 중요한 역할을 합니다.
설계 단계에서는 건축물의 구조, 배치, 기능 등을 결정하는 데 사용되며, 시공 단계에서는 건축물의 실제 모습을 확인하는 데 사용됩니다.
감리 단계에서는 설계도면과 시공 실적을 비교하여 설계의 적정성을 검토하는 데 사용되며, 유지관리 단계에서는 건축물의 안전과 효율성을 유지하기 위한 계획을 수립하는 데 사용됩니다.

평면도는 건축물의 내부 구조와 배치에 대한 정보를 제공하기 때문에, 건축물의 구매, 임대, 보수 등과 관련된 의사결정을 내릴 때에도 유용하게 활용될 수 있습니다.
평면도는 일반적으로 다음과 같은 정보들을 포함하고 있습니다.
- 건축물의 위치와 규모
- 건축물의 내부 공간의 명칭과 크기
- 건축물의 내부 공간의 용도
- 건축물의 내부 공간의 출입구와 창문의 위치
- 건축물의 내부 공간의 배관, 전기, 설비 등의 위치
평면도는 건축물의 설계도면 중 하나로, 건축물의 내부 구조와 배치를 이해하는 데 중요한 도구입니다.
3.입면도

立 설 립
面 낯 면
圖 그림 도
한자를 풀어보면 얼굴(모습)을 세워 놓은 그림 되겠습니다.
입면도는 건축물을 정면,우측,좌측, 후면에서 바라본 그림을 말합니다.
건축물의 외벽과 창문, 문, 기둥 등의 형태와 크기를 보여주며, 건축물의 외관을 파악하는 데 중요한 역할을 합니다.
입면도는 건축물의 종류와 용도에 따라 다양한 형태로 나타날 수 있습니다.
예를 들어, 단독주택의 입면도는 일반적으로 창문과 문이 많고, 아파트의 입면도는 창문이 규칙적으로 배치되어 있습니다. 또한, 백화점이나 쇼핑몰의 입면도는 유리창을 많이 사용하여 개방감을 주고, 공항이나 터미널의 입면도는 큰 글씨나 상징물을 사용하여 시인성을 높이는 경우가 많습니다.

입면도는 건축물의 설계 과정에서 중요한 도면 중 하나입니다.
건축가는 입면도를 통해 건축물의 외관을 구상하고, 건축주와 협의하여 최종 설계를 확정합니다.
또한, 입면도는 건축 공사를 진행하는 데에도 중요한 역할을 합니다.
건축업자는 입면도를 바탕으로 건축물의 외벽을 시공하고, 창문과 문을 설치합니다.
입면도를 작성하는 방법은 크게 두 가지가 있습니다.
하나는 직접 건축물을 관찰하여 입면도를 그리는 방법이고, 다른 하나는 건축 도면 소프트웨어를 사용하여 입면도를 작성하는 방법입니다.
직접 건축물을 관찰하여 입면도를 그리는 방법은 건축물의 실제 모습을 가장 정확하게 표현할 수 있지만, 시간이 많이 소요되고, 건축물의 세부적인 모습을 표현하기 어렵다는 단점이 있습니다.
건축 도면 소프트웨어를 사용하여 입면도를 작성하는 방법은 건축물의 세부적인 모습을 쉽게 표현할 수 있지만, 건축물의 실제 모습과는 다소 차이가 날 수 있다는 단점이 있습니다.
입면도는 건축물의 외관을 파악하는 데 중요한 도면으로, 건축물의 설계, 시공, 관리 등에 널리 사용되고 있습니다.
4.설계개요서
설계개요서는 건축물의 설계를 요약한 문서입니다.
건축물의 용도, 층수, 구조, 면적, 배치, 설비 등과 같은 기본적인 정보를 포함합니다. 설계개요서는 건축허가, 건축공사 착공신고, 건축물 사용승인 등과 같은 행정 절차를 진행하는 데 필요한 서류입니다.
설계개요서는 건축물의 설계를 시작하기 전에 작성됩니다. 건축주는 건축설계사와 협의하여 설계개요서를 작성합니다. 설계개요서는 건축주의 요구 사항을 반영하여 작성되며, 건축설계사의 설계 방향을 제시하는 역할을 합니다.

설계개요서는 다음과 같은 내용을 포함합니다.
- 건축물의 용도
- 층수
- 구조
- 면적
- 배치
- 설비
- 법적 제한사항
- 기타
설계개요서는 건축물의 특성에 따라 구체적인 내용이 다를 수 있습니다. 예를 들어, 아파트의 경우 주차대수, 엘리베이터 대수, 커뮤니티 시설 등이 설계개요서에 포함될 수 있습니다.
설계개요서는 건축물의 설계를 이해하는 데 중요한 문서입니다. 건축주, 건축설계사, 시공사, 감리자 등은 설계개요서를 참고하여 건축물을 설계, 시공, 감리합니다.
5. 건물배치도
건물배치도는 건축물의 위치와 형태를 나타낸 도면입니다.
대지 위에 건축물이 어떻게 위치하고 있는지, 건물의 크기와 모양은 어떤지, 그리고 주변 환경과 어떤 관계를 맺고 있는지를 한눈에 파악할 수 있도록 표현합니다.
건물배치도는 건축물의 설계 단계에서부터 중요한 역할을 합니다.
건축물의 용도와 기능을 고려하여 건물을 배치함으로써 효율적인 공간 활용과 안전한 동선을 확보할 수 있습니다.
또한, 주변 환경과의 조화를 고려하여 건축물을 배치함으로써 도시 미관과 환경을 개선할 수 있습니다.

건물배치도는 건축허가를 신청할 때 제출해야 하는 필수 서류 중 하나입니다.
건축허가를 받기 위해서는 건물배치도가 건축법과 관련된 규정을 준수하고 있는지 확인해야 합니다.
건물배치도의 표현 내용은 다음과 같습니다.
- 대지 위치 및 면적
- 건축물의 위치, 크기, 모양
- 주변 환경과의 관계
- 건축물의 방위
- 건축물의 이격거리
- 주차장, 조경 등의 시설물
건물배치도는 다양한 방법으로 표현할 수 있습니다.
손으로 그린 도면, 컴퓨터 프로그램으로 만든 도면, 또는 3D 모델링으로 만든 도면 등이 있습니다.
건축물의 규모와 목적에 따라 적절한 방법을 선택하여 표현합니다.
건물배치도는 건축물의 설계, 시공, 관리에 중요한 역할을 하는 도면입니다.
건축물의 효율성과 안전성, 그리고 미관을 고려하여 정확하고 세심하게 작성해야 합니다.
'집 구할때 알아야 할 부동산 용어 풀이' 카테고리의 다른 글
| 2025년, 가계대출의 향방은? 깐깐한 관리 속 숨겨진 기회 포착! (0) | 2025.02.02 |
|---|---|
| 대항력? 전입신고? 확정일자? (0) | 2024.01.02 |
| 저당권? 근저당? 채권최고액? (2) | 2023.09.03 |
| 자연녹지? 보전관리? 계획관리? 취락지구? (4) | 2023.09.02 |
| 타운하우스? 테라스? 테라스하우스? 땅콩주택? 스킵플로어방식? (0) | 2023.08.29 |
| 근린생활시설? 근생? (6) | 2023.08.27 |
| 기준시가? 공시지가? 공시가격? 감정가? 실거래가? 시세? (0) | 2023.08.24 |